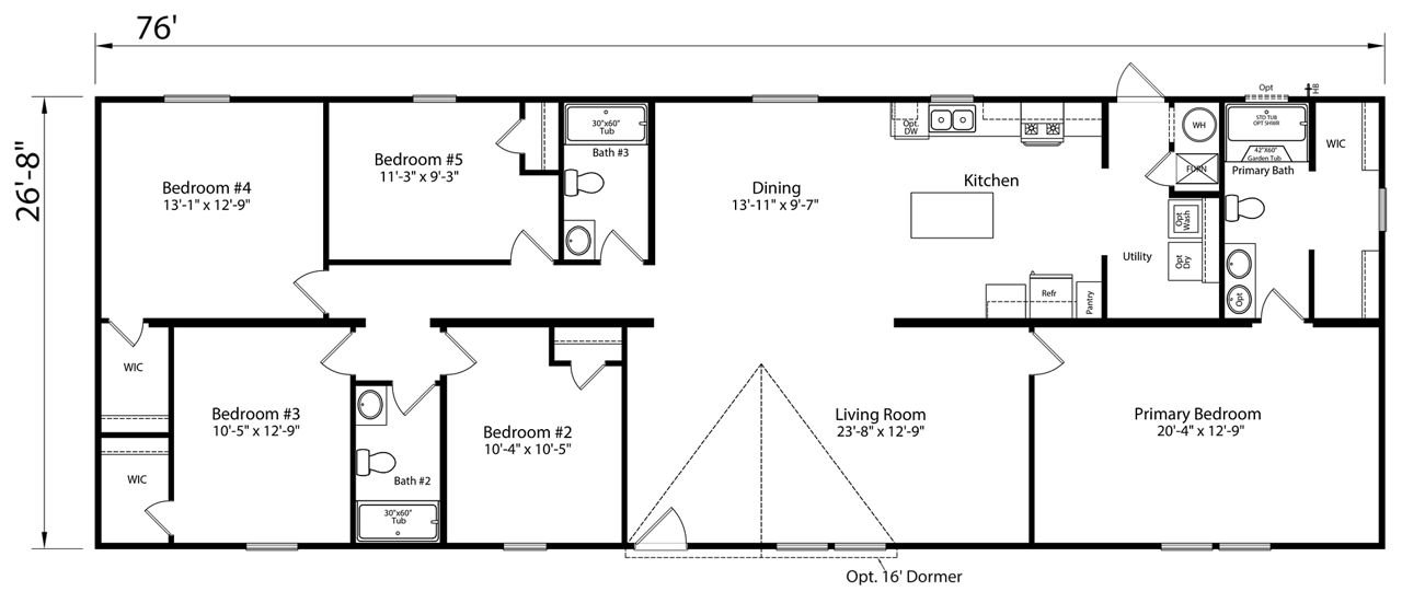
Prime Pinnacle 135

2027 Sq Ft

·

Multi-Section

·

5 Bed

·

3 Bath

Features

[my_features_list]

Floor Plan

Scroll to Top